EVENT
秋田県内各地の家づくりイベント
EVENT
【秋田市新屋】特別な家に、今だけの価格を【モデルハウスお譲りします】

| 日時 | 2025年10月23日(木) ~ 2025年12月28日(日) 10:00 ~ 16:00 |
|---|---|
| 場所 | 新屋モデルハウス 秋田市新屋前野町12-1付近【MAP】 |
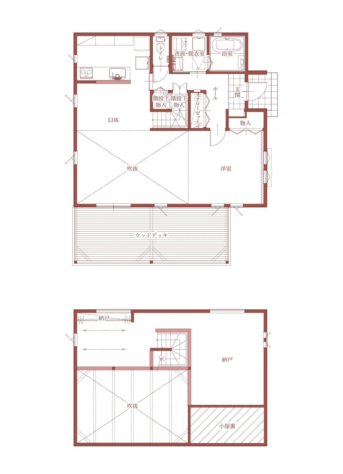
吹き抜けや広々LDK、ウッドデッキもある新屋モデルハウス。展示期間終了につき、感謝を込めた価格にてお譲りいたします。
初めての方には前日までのご予約+新築のご相談でプレゼントも。

\車は最大8台駐車可能/
最大3LDKに変更可能なモデルハウスをお譲りします
お家をお考えのたくさんのご家族にご来場いただいた、新屋モデルハウス。
大切に活用させていただいたこちらの新屋モデルハウスを、展示期間終了につき感謝を込めた価格にて販売いたします。


販売価格(土地+建物)
特別価格 2,980万円(税込)
【ご返済例】
月々のお支払い:72,566円
※2,980万円借入/地方銀行40年返済/変動金利0.8%/ボーナス払いなし
〈間取り〉最大3LDKに変更可能

ゆったりとした22帖のLDKは、吹き抜け天井で縦にも横にも広がる開放的で立体的な空間。
リビングの大きな窓の先には12帖のウッドデッキが広がり、BBQや夕涼みなどの外時間も楽しめます。
天井裏を活用したスペースは、洗濯物の室内干しやリモートワーク、趣味のスペースにと、暮らしがもっと豊かになる使い方も。
ご家族やライフスタイルに合わせてさまざまな使い方が叶う、自由度の高い間取りです。


〈物件詳細〉
■土地面積:327.71㎡(99.13坪)
■建物面積:108.23㎡(32.73坪)
■所在地:秋田市新屋前野町14-1 ■道路幅員:4m ■第一種低層住居専用地域 ■建ぺい率:40% ■容積率:60% ■ガス:都市ガス ■水道:公営水道 ■下水:公共下水道 ■電気:東北電力 ■交通:新屋駅徒歩15分 ■学区:日新小学校・秋田西中学校 ■2022年6月完成 ■木造 ■旧価格:3,786万円(2022年12月12日公表)→価格改定:2025年10月
〈周辺環境〉
・おきた町診療所まで…徒歩9分
・ローソン新屋鳥木町店まで…徒歩9分
・ハッピードラッグ秋田新屋店まで…徒歩10分
・セブンイレブン秋田新屋田尻沢店まで…徒歩11分
・ナイス新屋店まで…徒歩15分
〈長く安心して暮らせる保証・無料点検〉
■住宅保証 最長60年
■住宅設備保証 10年
■地盤保証 20年
■お引き渡しから25年間、大工経験のある専門スタッフが毎年無料点検
住んでからも安心が続く、万全のサポート体制です。
必要な設備・冷暖房完備ですぐ住めるモデルハウスをそのまま購入できるチャンス!
あなたの新しい暮らしを、このお家ではじめませんか?
初めての方で新築のご相談をいただいた方にはこんな特典も!
イベント特典
カフェ・ビーコロ様のドリップコーヒー

大仙市にあるカフェ・ビーコロ様の美味しいコーヒーがお家で楽しめるドリップコーヒー。1つのドリップバックはたっぷり15g入りという嬉しいボリューム!マスターこだわりの美味しいコーヒーで、ほっとひと息つきませんか?
※数量に限りがあり、無くなり次第終了となります。

