EVENT
秋田県内各地の家づくりイベント
EVENT
【大館市美園町】憧れのガレージライフを手に入れるチャンス!

| 日時 | 2025年12月01日(月) ~ 2025年12月28日(日) 10:00 ~ 16:00 |
|---|---|
| 場所 | ガレージと暮らす家 販売会 大館市美園町8-37付近【MAP】 |
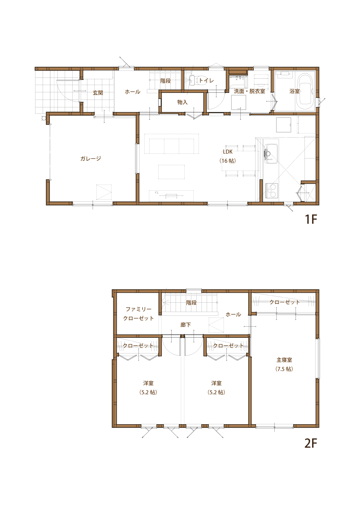
リビングからガレージ内を眺めて暮らすことができる、ガレージルームのあるモデルハウスをお譲りします!
初めての方には前日までのご予約+新築のご相談でプレゼントも。

\プライベート空間 × たっぷり収納 × 25年間の無料点検付き/
ガレージルームで理想の暮らしを手に入れるチャンス!
今年の2月の完成からお家をお考えの皆さまにご見学いただいた、『好きなものを眺めながら暮らせるガレージルーム付きモデルハウス』。
大切にご見学いただいたこちらの新築モデルハウスを、展示期間終了につき、これまでの感謝を込めた感謝価格にて販売いたします。

販売価格(土地+建物)
特別価格 2,898万円(税込)
■月々のお支払い:72,594円
※2,898万円借入/地方銀行40年返済/変動金利0.95%/ボーナス払いなし
〈間取り〉

3LDK+ガレージルームの間取り。
16帖のLDKからは、大きな窓越しに『好きなものを詰め込んだプライベート空間』を眺めて楽しめるガレージルームが続く、特徴的な家となっています。
駐車スペースというイメージの強いガレージですが、こちらは駐車スペースとしてではなく、趣味やこだわりを楽しむ『特別な居場所』として設計。
たとえば植物に囲まれるような空間にしたり、キャンプギアを磨く空間にしたり、アウトドア用品を詰め込んでお家キャンプをしたり…。
あなたの趣味に合わせて、いろいろな使い方ができます。
ロードバイクをメンテナンスしたり…

テラリウムや植物を楽しむことも。

ガレージルームは、将来一部屋にしたり、リビングを拡張するなど、暮らしに合わせて変更していくこともできます。
2階にはファミリークローゼットなど収納もたっぷりある、自由で快適な暮らしが叶うお家です。


〈物件詳細〉
■土地面積:230.94㎡(69.85坪)
■建物面積:101.84㎡(30.80坪)
■間取り:3LDK
■学区:城西小学校(徒歩3分)・第一中学校(徒歩6分)
■道路幅員:6m ■第一種中高層住居専用地域 ■建ぺい率:60% ■容積率:200% ■水道:公営水道 ■下水:公共下水道 ■電気:東北電力 ■交通:東大館駅徒歩13分 ■2025年2月完成 ■木造 ■旧価格:3,175万円(2024年12月16日公表)→価格改定:2025年10月
〈周辺環境〉
■ローソン大館美園町店まで…徒歩4分
■ハッピードラッグ大館片山店まで…徒歩11分
■大館市立総合病院まで…徒歩14分
■いとく片山店まで…徒歩15分
〈長く安心して暮らせる保証・無料点検〉
■住宅保証 最長60年
■住宅設備保証 10年
■地盤保証 20年
■お引き渡しから25年間、大工経験のある専門スタッフが毎年無料点検
住んでからも安心が続く、万全のサポート体制です。
新築のガレージルームのある家がそのまま購入できるチャンス!
実際にモデルハウスを体感し、暮らし方をイメージしてみませんか?
初めての方で新築のご相談をいただいた方にはこんな特典も!
イベント特典
カフェ・ビーコロ様のドリップコーヒー

大仙市にあるカフェ・ビーコロ様の美味しいコーヒーがお家で楽しめるドリップコーヒー。1つのドリップバックはたっぷり15g入りという嬉しいボリューム!マスターこだわりの美味しいコーヒーで、ほっとひと息つきませんか?
※数量に限りがあり、無くなり次第終了となります。

